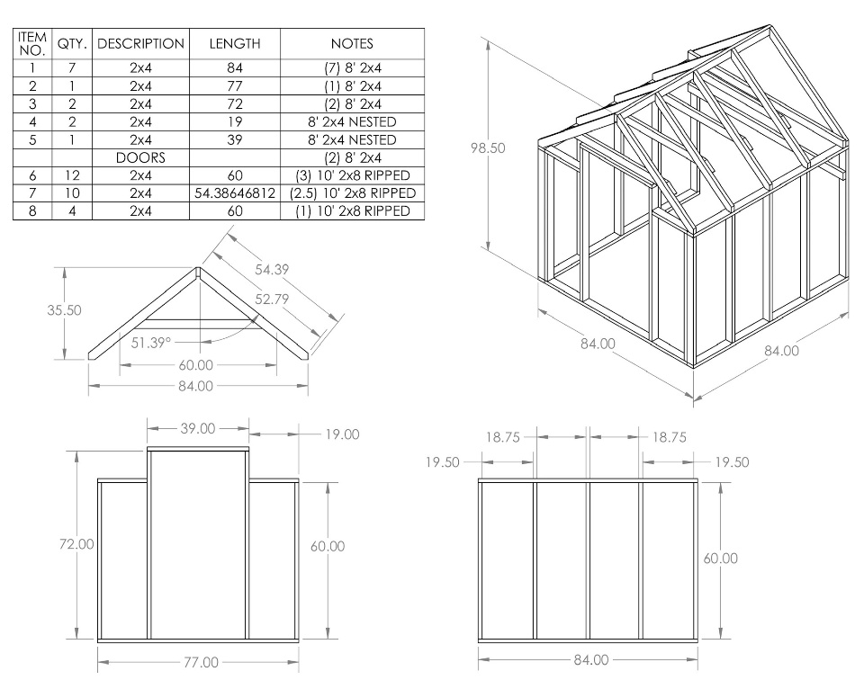
Don't let the name fool you... SOLIDWORKS Weldments functionality can be used for more than just designing things that get welded together. In fact, anything with a consistent cross-section, such as dimensional lumber, is fair game for these features. I created a quick library of 2-by profiles and used it to design a small green house in my garden!
I started by modeling the basic frame, keeping in mind that I was going to cover the green house in Solexx (a light-diffusing, twin-wall covering material). Then I created a quick drawing with critical dimensions and a cut list, and got to work.
This is a great example of where you don't always need to model everything in CAD before getting started making something. The cut list was enough for me to know how much 2-by material to purchase. I could then do some mental math to ensure the roll of Solexx would be long enough to cover the whole building, and to calculate how much 1-by cedar material I'd need for the trim. I didn't even bother modeling the doors! :) ...some times you just want to get into the shop, you know? ;)
Besides, I had a ton of work to do in the old garden to make room for the green house. I first had to tear out the old bulkhead leading to the basement, and rearrange all of the raised planting beds.
I built the three walls in my garage so I had a flat surface to work on, and then assembled them in place in the garden. The roof trusses were erected in place.
Finally, I wrapped the whole building in Solexx and built the doors. I can't wait for the cedar trim to turn a weathered grey!
Have you ever built a project like this, or is something like this on your to-do list? Let me know in the comments!
