Remember when you were a child, and all it took was one cardboard box and a little imagination and you could create anything you dreamed up? This week, inspired by the furniture we saw in the Maker Zone at 3DEXPERIENCE World, Chinloo and I put our imagination to work to design a modular standing desk made completely out of scraps of corrugated cardboard!
We used SOLIDWORKS for Makers to layout the initial design requirements...
...and then SOLIDWORKS Sheet Metal functionality to design the origami-like elements.
We used simple Elmer's glue to laminate together scraps of corrugated cardboard from old boxes to create large 3-ply sheets. We even did some strength tests to learn more about this remarkable material!
We used a sharp utility knife to cut out our designs, and then a metal straight edge and a few clamps to create the bends. Man, this stuff is tough! 3 layers of corrugated came to about a half an inch, and bending it, especially across the corrugation, was no small feat!
When everything was finished, we put the product to the test ...and everyone approved!
Check out the full video where we show the whole discovery, design, and build process!
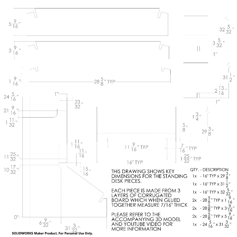
Here's a dimensioned drawing to give you a sense of how much corrugated board you'll need:
Download the 3D models (SOLIDWORKS and STEP formats) as well as a PDF with key dimensions to build a standing desk of your own!
OurNextMake
