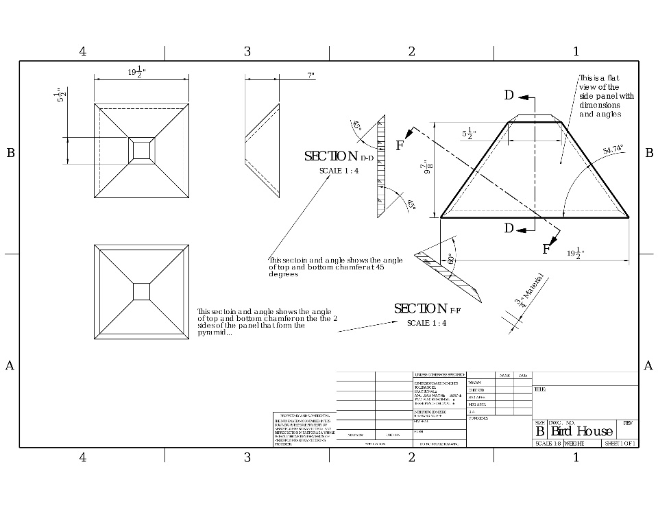
Had to get a complex angle programmed into a miter saw for a bird feeder roof design and have found that CAD is always a quick way to get these angled faces sorted out on compound angles...
Had to get a complex angle programmed into a miter saw for a bird feeder roof design and have found that CAD is always a quick way to get these angled faces sorted out on compound angles...