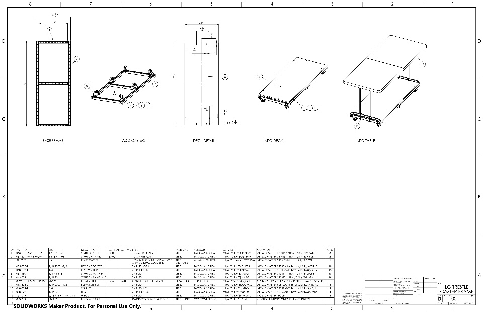
Tuning-up on SolidWorks configurations, online parts libraries, drawings and bills of material with a sturdy rolling worktable made from a commercial off-the-shelf folding table and custom six-wheeled channel strut frame. Estimated load capacity 900 pounds, evenly-distributed. Liked it so much I built two of them.
Note that if the drawing is downloaded as a PDF and opened in desktop Acrobat or Reader, the cutsheet links to each part in the BOM are activated.
