Enhancement Overview
Streamline assembly design with improvements to interference checking, open/save performance, and SpeedPak visualization and selection. Accelerate ECAD-MCAD design through better collaboration capabilities. Speed up the creation of manufacturing documentation with electrical routing enhancements. Use SOLIDWORKS PDM with SOLIDWORKS Connected. Use SOLIDWORKS Flow Simulation and SOLIDWORKS Plastics add-ins with SOLIDWORKS Connected.
Our Favorites:
- Include Surface Bodies in Interference Checks ⭐
 - SpeedPak Selection Circle Transparency Improvements⭐
 - Improved Open/Save Performance for Large Assemblies⭐
 - Electrical Harness Flattening Updates ⭐
 - Support Complex Electrical Splices in Flattening ⭐
 - Enforce Company Rules with Multi-approval Stamps on Drawings⭐
 - Ensure you always have access to the Latest SOLIDWORKS Template by Leveraging the 3DEXPERIENCE Platform⭐
 - Ensure Material Assignment on the Part Level is Respected when Used for Downstream applications on the 3DEXPERIENCE Platform⭐
 
Assemblies
[Enhanced] Include Surface Bodies in Interference Checks ⭐
Description: Detect intersections between solids and surfaces, as well as between just surfaces.
Benefit: There are many times users may want to check interferences with surfaces. Sometimes imported geometry, such as components to be used in an assembly, comes through as surface bodies. In other cases, such as when checking against machine and device keep-out areas, which are often represented as surfaces, and surface models, it is also important to check interference.
Applicable to 3DEXPERIENCE SOLIDWORKS Standard, Professional, Premium
[Enhanced] SpeedPak Selection Circle Transparency Improvements ⭐
Description: Control the transparency of the SpeedPak selection circle, enabling you to differentiate between selectable geometry and non-selectable graphics, when a SpeedPak component is in a top level assembly. In addition, a new cursor graphic indicates which geometry can be selected.
Benefit: Speed up working with large assemblies by reducing the model to just graphics along with some selectable geometry. This enhancement makes it much easier to understand surrounding geometry and select mating geometry when working with SpeedPak models.
Applicable to 3DEXPERIENCE SOLIDWORKS Standard, Professional, Premium
[Enhanced] Improved Open/Save Performance for Large Assemblies ⭐
Description: The Open/Save performance for large assemblies and large assembly drawings has been improved by boosting XML read/write.
Benefit: Reduce open and save times on new and existing datasets without having to learn new techniques.
Applicable to 3DEXPERIENCE SOLIDWORKS Standard, Professional, Premium
ECAD-MCAD
[Enhanced] Improved ECAD-MCAD Collaborative Design
Description: CircuitWorks displays correctly the modification results of mechanical components that are ‘Added / Moved / Deleted’ in SOLIDWORKS in the ‘Sync with ECAD’ dialog when exporting the board assembly back to CircuitWorks. CircuitWorks also displays correctly the comparison results between previous state and modified state of board assemblies in the CircuitWorks tree.
Benefit: Improve ECAD-MCAD collaborative design by capturing board changes made by mechanical engineers and allowing electrical designers to understand and quickly compare the board assembly to the last version of the design.
Applicable to 3DEXPERIENCE SOLIDWORKS Standard, Professional, Premium
Routing
[Enhanced] Enhanced Harness Flattening with Discrete Wires
Description: Edit harnesses comprised of either bundles of discrete wires or single segments using the straighten edit methodology for flattened assembly configurations with ‘reverse direction’ or '% change' functionality. This functionality is provided in the SOLIDWORKS Routing portion of 3DEXPERIENCE SOLIDWORKS Premium.
Benefit: Improve control of flattening 3D harnesses comprised of either single segments or discrete wires.
Applicable to 3DEXPERIENCE SOLIDWORKS Premium
[Enhanced] Enhanced Harness Flattening Updates ⭐
Description: Selected changes to an electrical harness design will now make incremental updates to the flattened configuration in a predictable way and maintain manual refinements to the original design made by the user. This functionality is provided in the SOLIDWORKS Routing portion of 3DEXPERIENCE SOLIDWORKS Premium.
Benefit: Improve the quality and speed up the creation and design changes of electrical harnesses designed using SOLIDWORKS.
Applicable to 3DEXPERIENCE SOLIDWORKS Premium
[Enhanced] Support Complex Splices in Flattening ⭐
Description: Handle splices positioned in a bundle or in a loop more efficiently. Position junction points in an electrical loop on the flatten plane. Rotate multi-conductor splices to the flatten plane in the harness flattening process. This functionality is provided in the SOLIDWORKS Routing portion of 3DEXPERIENCE SOLIDWORKS Premium.
Benefit: Speed up harness design and documentation by better handling electrical splices in the flattening process.
Applicable to 3DEXPERIENCE SOLIDWORKS Premium
[Enhanced] Option to Align Route Assembly to Origin and Coordinate System
Description: Provides an option to locate the starting point of a route at any of the following: the top level subassembly origin, the origin of the starting part or a manually selected point. This functionality is provided in the SOLIDWORKS Routing portion of 3DEXPERIENCE SOLIDWORKS Premium.
Benefit: Speed up the precise design of pipe, tube, and other route types by enabling the selection of the route origin up front which eliminates the need for time-consuming adjustments later in the design process.
Applicable to 3DEXPERIENCE SOLIDWORKS Premium
PDM Integration
[Enhanced] Integrating PDM with 3DEXPERIENCE SOLIDWORKS
Description: A new option enables you to switch between “3DEXPERIENCE” and “SOLIDWORKS PDM or other data management”. Choosing the second option means that the next session of 3DEXPERIENCE SOLIDWORKS will launch in a “No PLM” mode.
Benefit: SOLIDWORKS PDM customers can use SOLIDWORKS PDM inside 3DEXPERIENCE SOLIDWORKS. Previously, the SOLIDWORKS PDM add-in was not possible to load in 3DEXPERIENCE SOLIDWORKS.
Applicable to 3DEXPERIENCE SOLIDWORKS Standard, Professional, Premium
Collaborative User Experience
[NEW] Make from Tab in MySession Side Panel⭐
Description: 'Make From' is added inside the MySession side panel.
Benefit: Conveniently view and assign 3D models (e.g. casting) or raw materials to the physical product directly within the MySession panel.
Applicable to 3DEXPERIENCE SOLIDWORKS Standard, Professional, Premium, and Collaborative Designer for SOLIDWORKS
[NEW] Action History Tracking⭐
Description: 'History' tab allows you to track all actions performed on a model, providing greater transparency and control. Easily review changes on the models directly within the MySession side panel.
Benefit: Empower users to efficiently review and manage design changes, enhancing accuracy and collaboration throughout the modelling process.
Applicable to 3DEXPERIENCE SOLIDWORKS Standard, Professional, Premium, and Collaborative Designer for SOLIDWORKS
[NEW] Access to 3DSwym Directly from the MySession Side Panel⭐
Description: Seamless access 3DSwym communities directly from the MySession side panel, without needing to launch the application.
Benefit: Save time and streamline workflow by directly accessing 3DSwym communities from the MySession side panel.
Applicable to 3DEXPERIENCE SOLIDWORKS Standard, Professional, Premium, and Collaborative Designer for SOLIDWORKS
[ENHANCED] 'Open with' in 3DDrive
Description: This functionality enhances the 'Open With' workflow in the 3DDrive app. Users can now open files with SolidWorks Connected or SolidWorks add-in without encountering a blocking message in the browser, even if the 3DDrive client isn't installed on the system.
Benefit: Seamlessly open selected files in SOLIDWORKS through the 'Open With' workflow in the 3DDrive app, regardless of whether the 3DDrive client is installed on your machine or not.
Applicable to 3DEXPERIENCE SOLIDWORKS Standard, Professional, Premium, and Collaborative Designer for SOLIDWORKS
[ENHANCED] Up-to-date Template
Description: Download only the latest revision of a template when multiple revisions exist on the platform. If the latest revision isn't visible, download the latest visible one instead.
Benefit: Ensure you always have access to the latest SOLIDWORKS template by leveraging the 3DEXPERIENCE platform.
Applicable to 3DEXPERIENCE SOLIDWORKS Standard, Professional, Premium, and Collaborative Designer for SOLIDWORKS
Data Integration
[ENHANCED] New Check in File Preparation Assistant to Determine if the File Version is Older than 2021
Description: This function flags files older than SOLIDWORKS 2021 so they can be updated by opening and saving in the latest version. Results are shown in an HTML table.
Benefit: Effortlessly identify files older than 2021, helping you update and save files in the latest version.
Applicable to 3DEXPERIENCE SOLIDWORKS Standard, Professional, Premium, and Collaborative Designer for SOLIDWORKS
[ENHANCED] Virtual Component Deletion
Description: The update enables the deletion of virtual components by any user with modification rights, regardless of their role. Previously, attempting to delete a SOLIDWORKS configuration without the Leader role would result in a save failure. It particularly benefits assemblies with Piping/Routing data, streamlining component management for Authors with modification rights.
Benefit: Authors can delete virtual components within their assemblies, improving workflow efficiency and collaboration.
Applicable to 3DEXPERIENCE SOLIDWORKS Standard, Professional, Premium, and Collaborative Designer for SOLIDWORKS
[ENHANCED] Material Exposition
Description: When a part file (SLDPRT) is saved on the 3DEXPERIENCE platform, the user-applied material is effectively propagated within 3DEXPERIENCE applications as follows:
- Material applied at the part level remains applied at the 3DPart level in 3DEXPERIENCE.
- Material applied at the body level remains applied at the body level in 3DEXPERIENCE.
However, if materials are specified directly within the platform, any definitions set at the part level are disregarded, and all materials are converted into body level specifications.
Benefit: Ensure material assignment on the part level is respected when used for downstream applications on the 3DEXPERIENCE platform.
Note: This is only applicable to 3DEXPERIENCE core materials. For more infomration on this please click this link
Applicable to 3DEXPERIENCE SOLIDWORKS Standard, Professional, Premium, and Collaborative Designer for SOLIDWORKS
Lifecycle Management
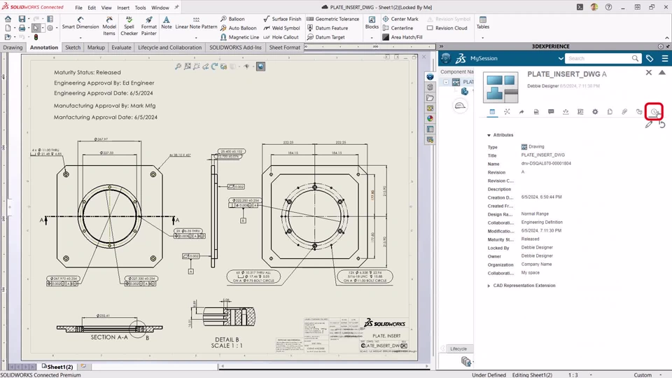
[ENHANCED] Multi-level Approval
Description: This function dynamically evaluates PLM properties referenced in drawing annotations, reflecting their current values in 3DPlay or 3DMarkup. It enables the display of information generated during the drawing release process in 3DPlay, including approver lists, associated tasks, and approval dates.
Benefit: Enforce company rules with multi-approval stamps on drawings.
Applicable to 3DEXPERIENCE SOLIDWORKS Standard, Professional, Premium, and Collaborative Designer for SOLIDWORKS
Flow and Plastics Simulation Integration
[Enhanced] Leverage SOLIDWORKS Flow Simulation and SOLIDWORKS Plastics in 3DEXPERIENCE SOLIDWORKS
Description: Install SOLIDWORKS Plastics and SOLIDWORKS Flow Simulation with 3DEXPERIENCE SOLIDWORKS. Users will also be able to install SOLIDWORKS Plastics and SOLIDWORKS Flow Simulation after 3DEXPERIENCE SOLIDWORKS is installed.
Benefit: Users can use the SOLIDWORKS Plastics and SOLIDWORKS Flow Simulation add-ins with 3DEXPERIENCE SOLIDWORKS.
Applicable to 3DEXPERIENCE SOLIDWORKS Standard, Professional, Premium
Tags:
Assemblies ECAD & MCAD RoutingElectrical & CircuitWorksData Management & PDMUser Experience Drawings Detailing and BOM Lifecycle and Collaboration 3DEXPERIENCE platform Simulation FEA, CFD and DYN Data Integration
