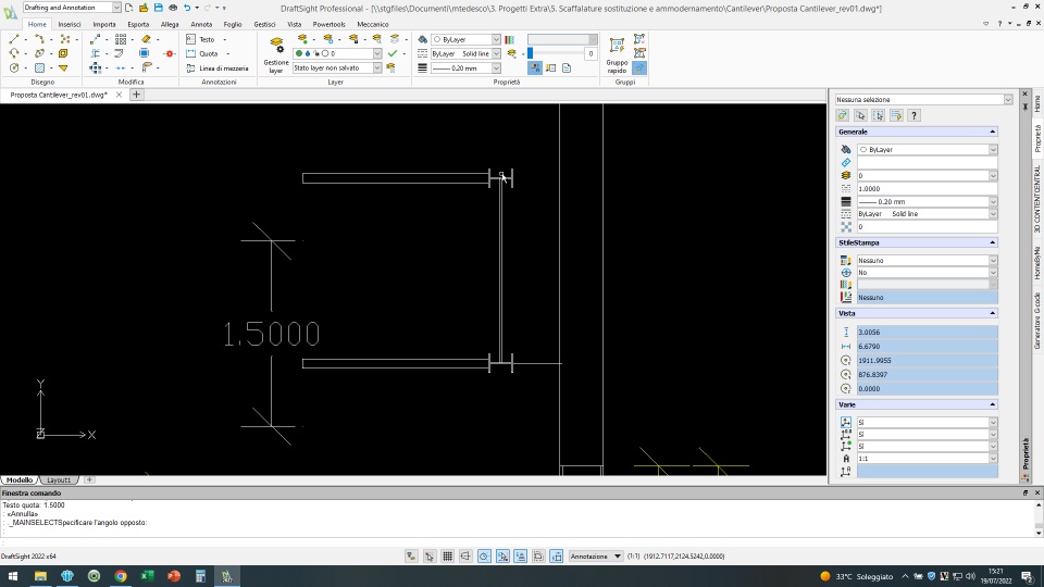
Quote don't work

when I go to quote a measure, the physical marker is displaced without a sense.

I have already deleted App Data.