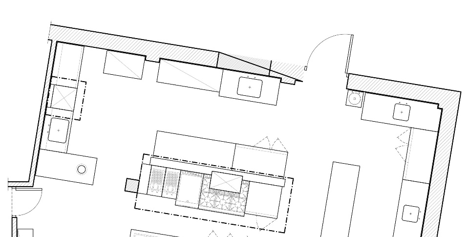
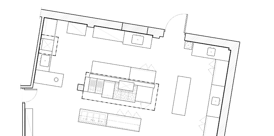
The following images show 1. polylines in model space. 2. the polylines to print and 3. the pdf produced from them. The line is corrupted and angled as you can see in #3. How or why is this happening? Please help.
The following images show 1. polylines in model space. 2. the polylines to print and 3. the pdf produced from them. The line is corrupted and angled as you can see in #3. How or why is this happening? Please help.