Hello All,
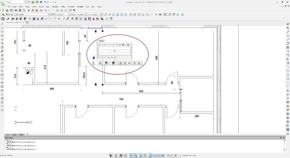
I need advice on how to disable these popups?
Such windows pop up when I click on any dimensions and they cover my working area and I do not need them. It bothers me a lot. I have not seen such things before, they started to appear from some update.
