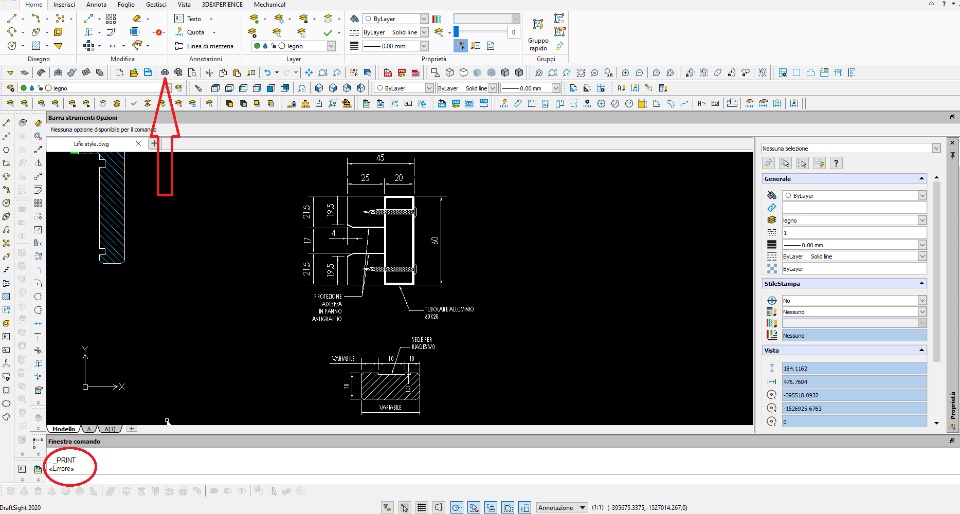
When printing (click on the printer icon) on the toolbar, the printer configuration windows does not appear, but we receive the error <
When printing (click on the printer icon) on the toolbar, the printer configuration windows does not appear, but we receive the error <