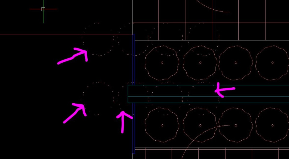
I've tried searching but I'm not sure the correct terms to use. I keep getting "shadows" from lines as I zoom and pan. It's not really a problem, because the "shadows" go away after I zoom out and in again, just a bit annoying when I try to grab items with all these shadow lines scattered across the screen. Snip from my screen shown, with the "shadows" of the trees pointed at with pink.
