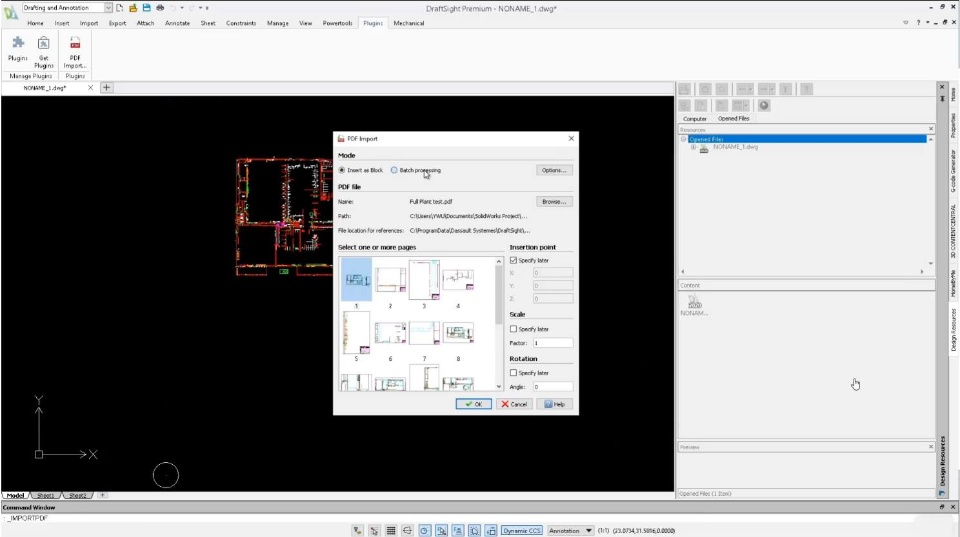
Good morning, I found information on Facebook that in DS2021 you can find plugin that allows you to fully work with PDF files. Unfortunately, after downloading and installing the program, I cannot find this plugin anywhere, it is not in the add-ons, there is no plugin tab in the program window. Will this functionality be introduced in the next SP?
