Hello,
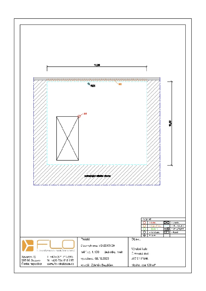
after updating my Mac to macOS Sonoma, when using it’s built-in feautre Print-To-PDF, the PDFs look blurry (see the attachments).
Unfortunately, as we’re not able to use DraftSights own built-in PDF Export, the software became unusable for us, and need a fix ASAP (we need to generate >10 drawings / week for our customers).
Can you please help us? Do you have any ideas?
Thanks,
best regards,
D.
