I currently use Autocad 2008 to make drawings and I need compatibility with Draftsight.
I use annotative dimensions in work space and I set up windows in paper space. This mean that I have different windows with different scale in use, Moreover in a 1:1 window I can only see 1:1 dimensions and in a 10:1 window I can only see 10:1 dimensions and so on. Autocad variable "ANNOALLVISIBLE" set to 0.
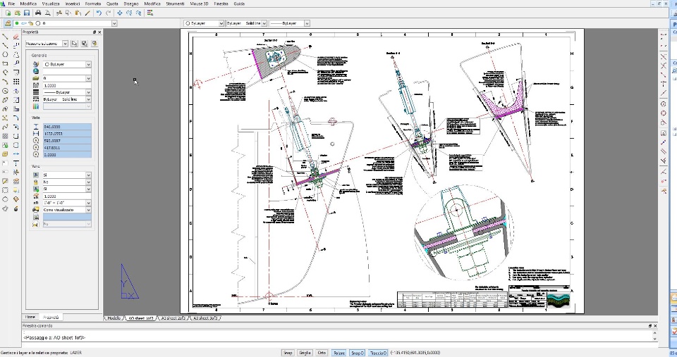
As I use annotative dimensions the software change automatically the scale of the dimension based on window scale. This work perfectly in Autocad but when the drawing is open in Draftsight I can only see the dimension in the first window made. all other dimensions disappear.
If I save the drawing with the Autocad variable "ANNOALLVISIBLE" set to 1 I'm able to see all the dimensions but now on the same window I can see dimensions of different scale and the drawing become messy.
As work around I can set a layer for dimension for each window but I would like that Draftsight better handle the annotative objects made in Autocad to have a complete compatibility, too many times I heard of people complaining missing dimensions opening with Draftsight drawing made in Acad.
I add two image of the same file saved with ANNOALLVISIBLE set to 0 and to 1.
In Autocad both files show the same as all annotative objects are shown in correct window. In Draftsight a lot of dimensions and annotations disappear.
Best regards
Stefano
