Good day everyone
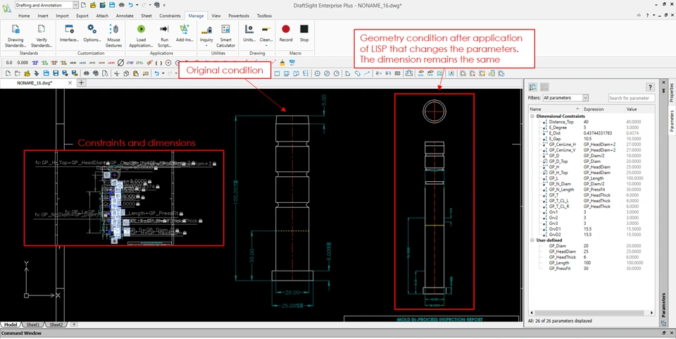
I've created a drawing of a leader pin with constraints, and everything is functioning correctly. My current goal is to have the dimensions automatically update when I adjust parameters using a LISP routine. When I modify the parameters manually, the dimensions update as expected. However, when the same parameters are changed via the LISP, the geometry updates, but the dimensions remain static.
Is there a way to ensure that dimensions remain associative and update accordingly when changes are made through LISP?
