Bonjour la communauté, je suis nouveau sur 3Dexpérience (ancien utilisateur V5)
J'ai un petit soucis lors de générations de nomenclatures en mises en plan :
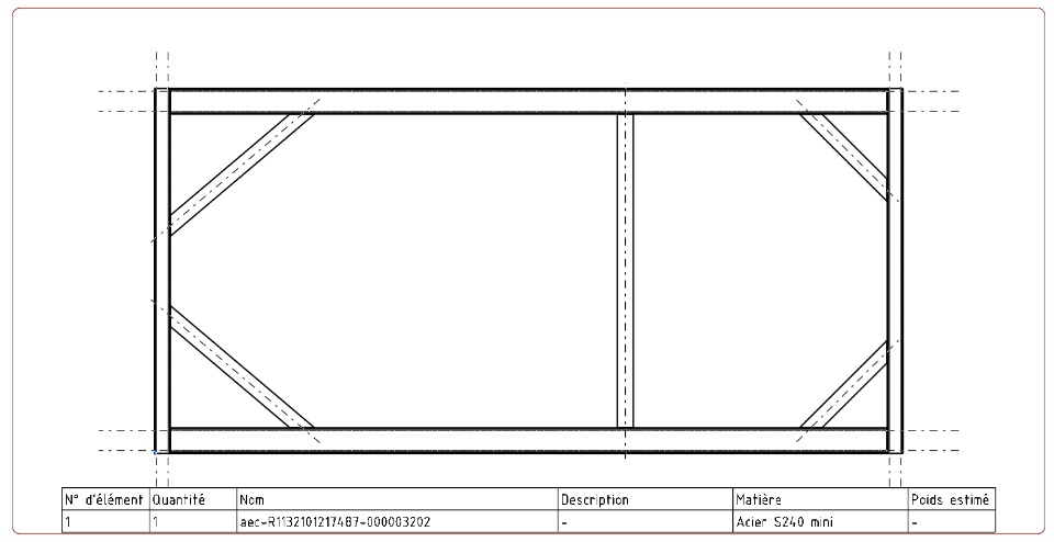
1) le poids ne se mets pas à jours quel que soit le paramètre que j'applique au tableau (poids estimé/poids calculé..)
2) Je n'arrive pas à sortir de nomenclature des sous éléments poutres/solives/plaque d'une pièce réalisé à partir de catalogues de poutres/étrésillon/solive... du module Civil Structures Design.
De plus, avec l'évaluateur de structure, nous voyons bien toutes les infos nécessaires.., mais l'extraction en fichier excel ne fonctionne pas.
Merci d'avance pour vos conseils!
