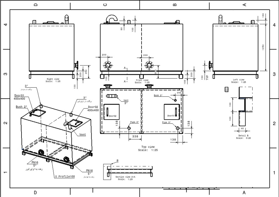
This Storage tank is designed to be placed in the path of the air generator and evaporator and the production machine, which can have a capacity of about three tons, these three tons are installed in two parts, left and right, and of course, the interface between these two parts is open from above, which is accessible be comfortable
CATIA Software
