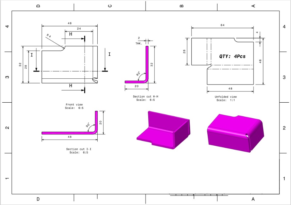
One of the disadvantages of designing and using steel tanks in the food industry is the sharp and welded corners, which over time suffer wear and tear and prevent food requirements. It made a change that we will have the correct shape in the end and we will not have problems related to health issues.
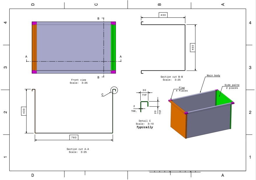
Since these corners are in the form of several separate pieces, it is very easy to determine and take everything into account in terms of appearance and hygiene.
