Hi everybody!
After reinstalling the software I'm having an unnerving experience with entity selection, specifically when I click on a grip of a selected line if there's another adjacent line for some reason it gets selected too!
I've spent heaps of time on the help file and searching for an answer on forums etc. to no avail :(
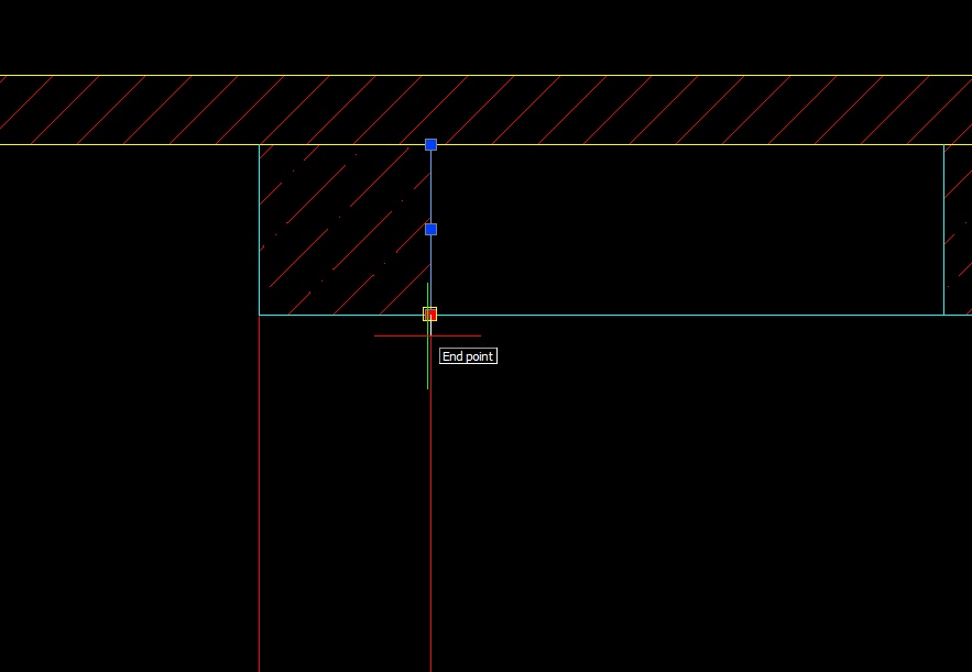
Since it's driving me bananas and I really need help here's an illustrated example
1) I want to move the red line from point A to B
2) I select the line
3) I pick the end-point grip -> NOW THE BLUE LINE ABOVE IS SELECTED TOO
4) If I move the red line the blue line comes with it.
I need the blue line to stay unselected
Please help me!
Dario Venier
