* Formerly known as Electrical Schematic Designer
Our Favorites
- Speed time-consuming electrical connector design tasks
- Streamline building content libraries on the 3DEXPERIENCE platform
Electrical Design and Data Management
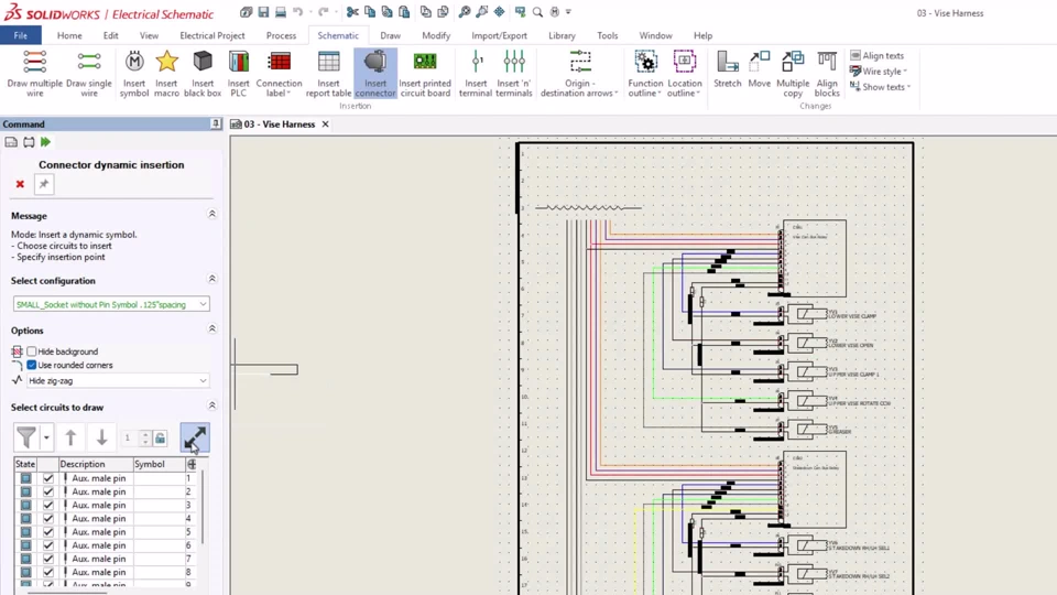
[ENHANCED] Dynamic Connector Insertion Improvements
Streamline the user interface and improve filtering to accelerate connector setup during the electrical design process.
[ENHANCED] Expanded Ability to Save Local Libraries to 3DEXPERIENCE
Enable users to provide local electrical content to a central content library on the 3DEXPERIENCE platform with greater control of bookmarks and classifications.
