The following enhancements apply to DraftSight applications with a named-user license and a device term license, unless stated otherwise.
Collaboration and Data Management
PLM Drawing Attributes in Drawing Properties
View and manage PLM metadata directly in the Drawing Properties dialog without leaving DraftSight. The new PLM Drawing Attributes option keeps designers in their 2D drafting environment, reducing context switching and ensuring data integrity across the 3DEXPERIENCE platform.
Applicable to DraftSight Premium and Mechanical with a named-user license, and Collaborative Designer for DraftSight
User Experience and Adaptive Design
New Modular Status Bar
Toggle the status bar between icon-only, labeled text, and dual icons & label modes to match your display environment and experience level. New users get descriptive labels for faster orientation; experienced users can switch to a compact icon view to maximize screen space.
Applicable to DraftSight Professional, Premium, Mechanical, and Collaborative Designer for DraftSight
Manufacturing and Interoperability
Automated Part Nesting
Minimize material waste and eliminate manual layout calculations with the new Nesting Manager task pane. Define your parts and sheet material, and the tool automatically arranges components for optimal material use.
Applicable to DraftSight Mechanical
High-Fidelity STEP Export
Export DraftSight drawings directly to STEP format for use in CAM and CAE workflows, preserving your 2D data as the authoritative source for downstream production.
Applicable to DraftSight Premium, Mechanical, and Collaborative Designer for DraftSight
Intelligent Drafting Automation (Mechanical Suite)
Synchronous Design Intelligence
Eliminate manual redrawing with the AM_DIMSTRETCH command, which provides a value-driven workflow that instantly updates geometry, ensuring 100% accuracy between design intent and physical output.
Applicable to DraftSight Mechanical
Dimension Join
Merge dimension chains into a single, unified annotation with the AM_DIMJOIN command, reducing cleanup time and improving drawing readability.
Applicable to DraftSight Mechanical
Automated Dimension Check
Catch dimension errors before they reach production with the AM_DIMCHECK command. The engineering spellcheck automatically flags text overrides and technical inconsistencies in your drawings, reducing costly downstream manufacturing defects.
Applicable to DraftSight Mechanical
Global Dimension Edit
Update multiple dimensions simultaneously with surgical precision using the AM_DIMMEDIT command and its unified ribbon interface. Apply targeted changes across your entire drawing in one operation instead of editing annotations one by one — reducing revision time on complex drawings.
Applicable to DraftSight Mechanical
Integrated Engineering Analytics
Accelerate the engineering phase by automating complex inertia calculations for standard profiles, providing immediate analytical insights directly within the 2D drawing environment.
Applicable to DraftSight Mechanical
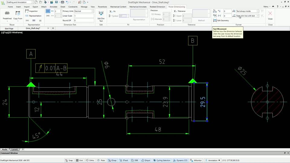
Format Panel for Power Dimensioning
Apply geometry edits and text-fit controls directly from the new Format panel in the Power Dimensioning contextual ribbon — no nested menus required. Keep crowded drawings clean and precise without interrupting your annotation workflow.
Applicable to DraftSight Mechanical
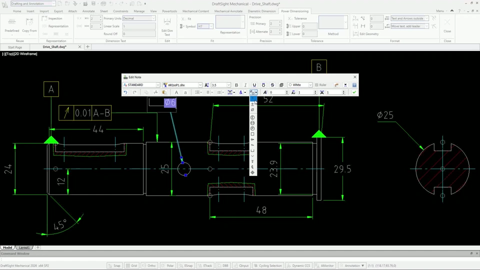
Mechanical Symbol Library
Insert GD&T (Geometric Dimensioning and Tolerancing) and machining symbols directly into drawing notes from the new mechanical symbol library in the Edit Note dialog. Symbols are centralized in one place, keeping annotations standards-compliant and eliminating inconsistencies across drawings.
Applicable to DraftSight Mechanical
Streamlined Dimension Arrangement
Arrange dimensions faster with automated spacing and manual fine-tuning backed by real-time feedback, producing clean, professional drawing layouts without time-consuming manual adjustments.
Tags:
