[SOLIDWORKS] 3DEXPERIENCE DraftSight

Functional Value

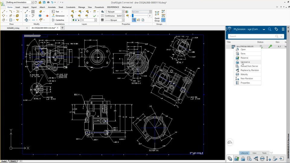
Modify DWG files checked in by the AutoCAD Connector using 3DEXPERIENCE DraftSight.

Save a DWG from the AutoCAD Connector to the Platform. Then edit in 3DEXPERIENCE DraftSight the same DWG that was checked in by the AutoCAD Connector to the Platform.


Save a DWG from the AutoCAD Connector to the Platform.


Edit in 3DEXPERIENCE DraftSight the same DWG that was checked in by the AutoCAD Connector to the Platform.


Save in 3DEXPERIENCE DraftSight the same DWG that was checked in by the AutoCAD Connector to the Platform.