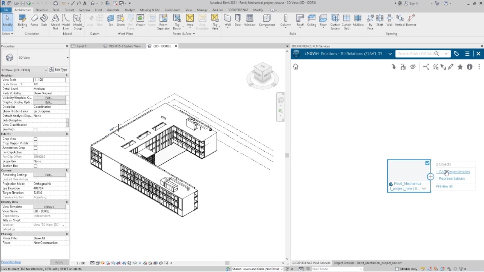
[ENOVIA] Collaborative Designer for Revit

Functional Value

Visualize 3DModel in 3DEXPERIENCE and perform simple design review scenarios


Save modifications on Revit central and 3DEXPERIENCE with a single command.


Support 2D Sheets linked to the project by saving on 3DEXPERIENCE



​​​​​​​