[CATIA] Systems Schematic Engineer

Functional Value

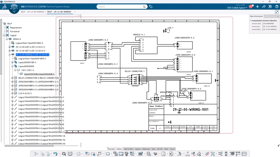
Enhance net-to-wire data generation to handle complex connector display in diagrams in a more contextual and adaptive manner and supports generation of multi-level cables with complex wire subset configurations

 

Enhanced Net to Wire generation with complex cables - What's new video

 

Net to wire enhancement for multi-level net group

 

Multi-level cable created with net to wire command

 

Wiring diagram generation with complexe symbols