[CATIA] Multidiscipline Automated Drafter

Functional Value

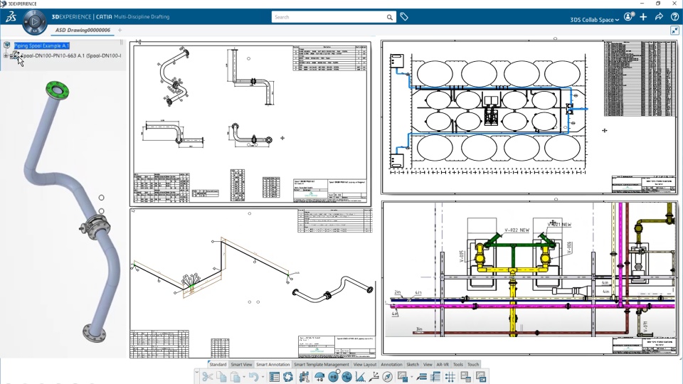
New Role for drafter specialist. Extend Drafting capabilities to do fully automated drawing generation including HVAC and Piping orthogonal and Isometric drawings in batch

I
Overview video for Multidiscipline Automated Drafter. New role in R2021x FD03

I
Create discipline specific drawings for Heavy industries and Civil engineering with certified templates and with minimum manual rework

I
Generate in batch Piping Orthogonal and isometric drawings for Spool fabrication and installation

I
Generate easily multi view Steel structure drawing thanks to usage of view template and annotation rules