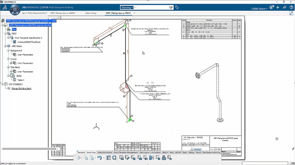
Functional Value
Create more complete piping isometric drawings by delivering following capabilities:
- New drawing style template dedicated to spool assembly drawing
- Define global, local or user defined axis for coordinate extraction
- Allow customer to define bend node annotations
- Improve pipeline continuation annotation
- Improve drawing readability: rescale short runs
