Hi all,
A few questions for you.
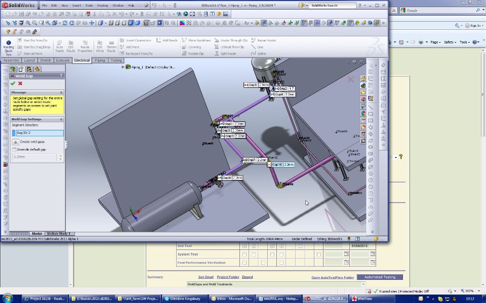
1. Do you need us to provide functionality for weld gaps? A fewcustomers have asked for this. The intent would be to shorten eachend of the pipe by eg, 1-5mm depending on pipe size and weld spec.You can do this today (graphically) for piping but we would needthe cut length to be adjusted to subtract the 2 weld gaps.
2. Do you need weld gaps to be shown between fittings that areconnected fitting to fitting? Would it be the same gap as for pipeto fitting?
3. Would you like to record the weld spec for welds? We arethinking of a static value on the CPoint and a special BOM templatethat could be used to list these in the pipe drawing. Would this besufficient?
3. How big a requirement is piping with slope?
Would you generally achieve the slope by a tapered weld or bytrimming the end of the pipe?
Would you need to show this graphically or on the drawings?
Would you need to adjust the pipe lengths to allow for this endtreatment?
I'd be very grateful for any info you can give as we need to makedecisions to prioritise future development.
Thanks in advance,
AndySolidworksRouting



A few questions for you.
1. Do you need us to provide functionality for weld gaps? A fewcustomers have asked for this. The intent would be to shorten eachend of the pipe by eg, 1-5mm depending on pipe size and weld spec.You can do this today (graphically) for piping but we would needthe cut length to be adjusted to subtract the 2 weld gaps.
2. Do you need weld gaps to be shown between fittings that areconnected fitting to fitting? Would it be the same gap as for pipeto fitting?
3. Would you like to record the weld spec for welds? We arethinking of a static value on the CPoint and a special BOM templatethat could be used to list these in the pipe drawing. Would this besufficient?
3. How big a requirement is piping with slope?
Would you generally achieve the slope by a tapered weld or bytrimming the end of the pipe?
Would you need to show this graphically or on the drawings?
Would you need to adjust the pipe lengths to allow for this endtreatment?
I'd be very grateful for any info you can give as we need to makedecisions to prioritise future development.
Thanks in advance,
AndySolidworksRouting
