3D
EXPERIENCE |
3DSwym
SOLIDWORKS User Forum
EN
English
Français
Deutsch
Español
Èeština
Italiano
日本語
한국어
Português Brasileiro
Pусский
简体中文
繁體中文
Polski
|
Log in
Communities
SOLIDWORKS User Forum
Sheetmetal Bends
Sheetmetal Bends
SF
SF
2010-02-16
SOLIDWORKS User Forum
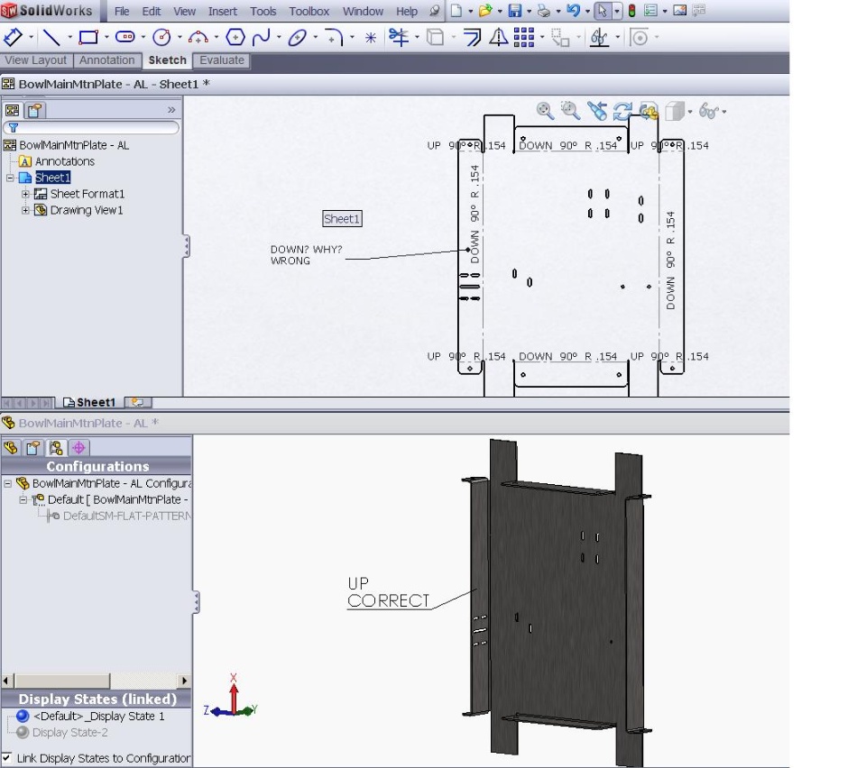
Has anyone had any sheetmetal bend issues with SW-2010 please see jpeg attachment. I created the model which is correct then I make the drawing then it loses it bend orientation. Does anyone know why?
Solidworks
Sheet Metal