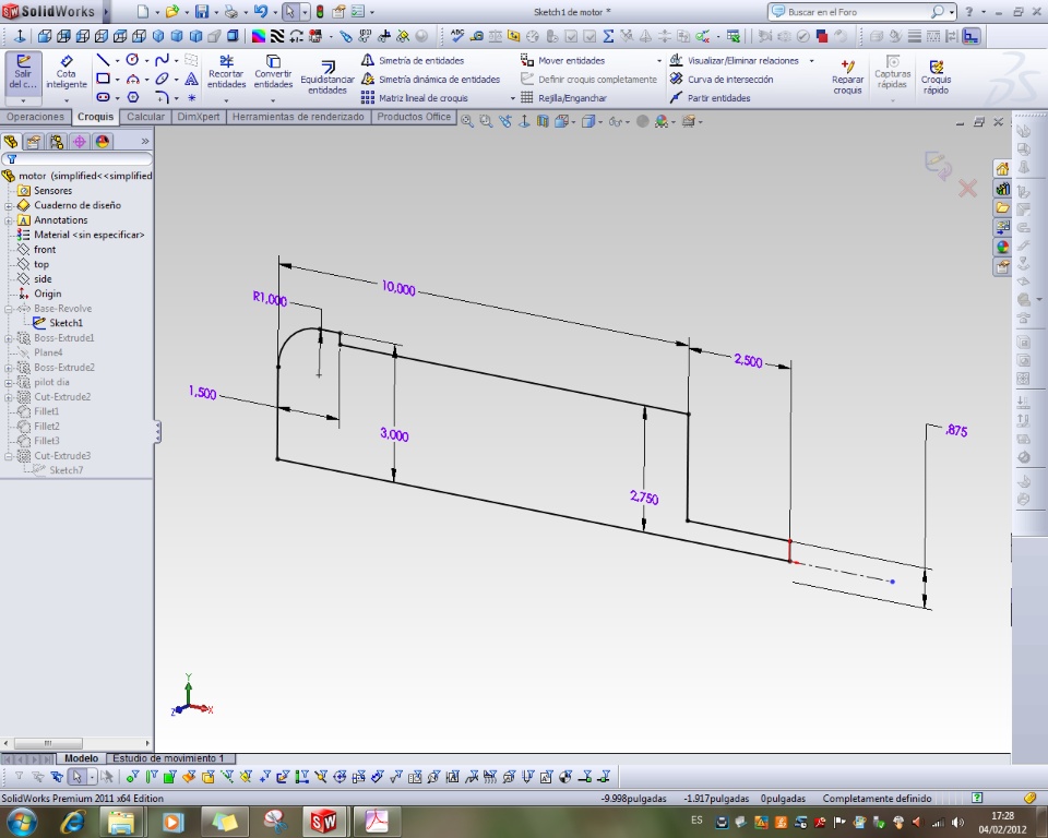
I'm working on some exercises, and I have found this kind of sketch, with purple dimensions...
What does it mean?
Thank you in advance !
I'm working on some exercises, and I have found this kind of sketch, with purple dimensions...
What does it mean?
Thank you in advance !