Dear SolidWorks Gurus,
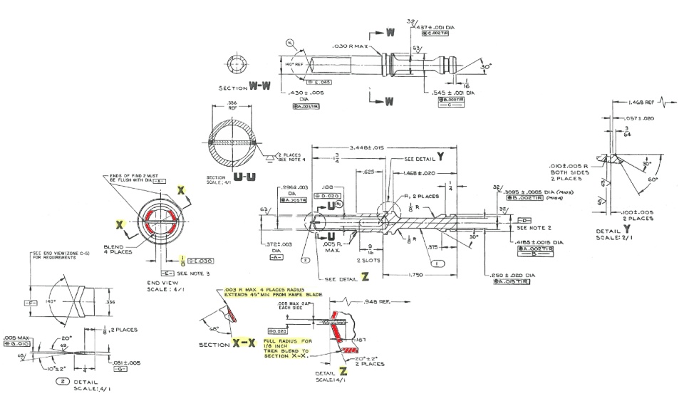
I for the life of me can not figure out a way to add the 68° cut to the attached part as shown in Section X-X on the attached print. The starting point for it is .063" from the center in each direction as shown in the end view. I also am having a hard time making the full radius on the end of the tubular section shown in Detail Z so it then blends into the Section X-X detail. Any help would be greatly appreciated. I am running SW14 so if you are running a newer version it would be greatly appreciated if you could explain how to go about it.
Thanks in advance,
Chris
SolidworksParts And Features