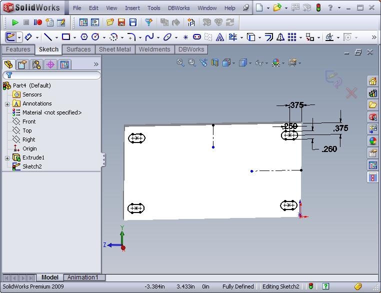
This has been going on for a while, and I thought I would troubleshoot later each time I saw the issue, but I can't seem to find a solution to mirroring a sketched slot to the 4 corners of a plate. See attached. If I fully define the first slot, then sketch a CL at each midpoint, then mirror the slot about one of the centerlines, then both slots about the other centerline, the sketch is over defined. It has been repeatable every time for me. Do I have a setting that can be changed to avoid this, or is there something fishy with the sketch slot entity? To fix the sketch, I have to remove the symmetric from the second set of slots, then manually make one arc from the under-defined slots symmetric to the seed entity, the center point, and an end point. Pain in the south end of a north bound horse.
SolidworksSketching