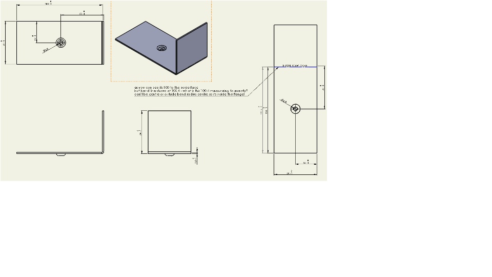
hi all - help on this would be appreciated - what point is dipicted by bends lines in a flat pattern? my flat pattern bend lines are not making sense to us. see below...
hi all - help on this would be appreciated - what point is dipicted by bends lines in a flat pattern? my flat pattern bend lines are not making sense to us. see below...