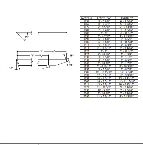
I'm trying to find a way to create weldment cutlists by means of selecting the bodies. When detailing the weldment we can create one detail that has similar bodies with the only dimensional change being one dimension...say OAL. This way multiple bodies can be detailed in one view...see below. So far this is manual, "General Tables" and is a pain to manage as sometime item #'s change unexpectedly... So to get this created by using a weldment cutlist table would be helpful. I've seen macros, but I have not been successful at getting them to work.
