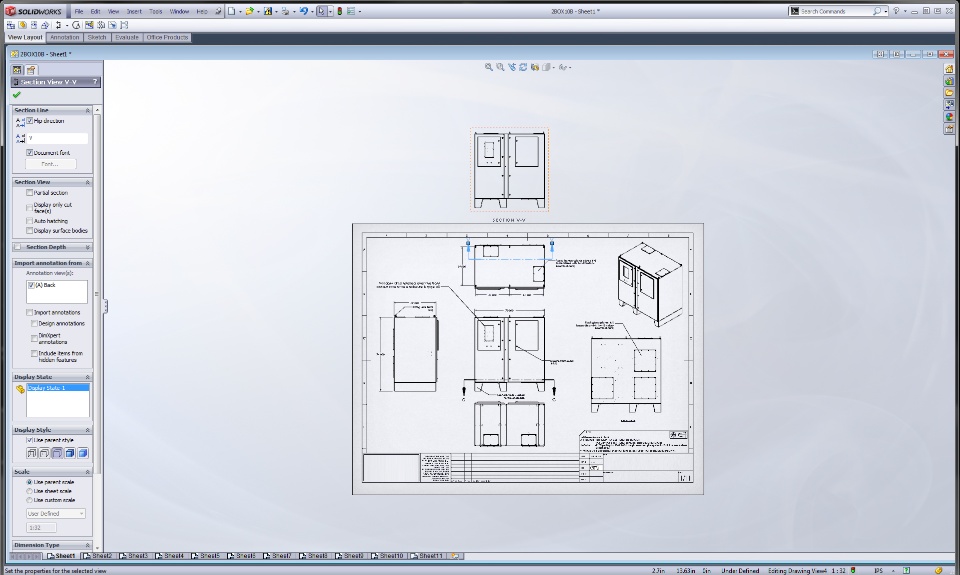
I am trying to make section out of a top view.
The result: a front view !???
Can someone help me with this please?
See section V-V in attached image.
Thanks
SolidworksDrawings And Detailing
I am trying to make section out of a top view.
The result: a front view !???
Can someone help me with this please?
See section V-V in attached image.
Thanks
SolidworksDrawings And Detailing