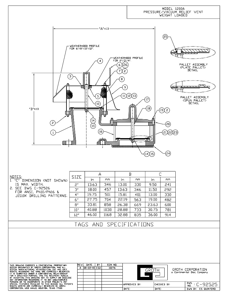
I have a pressure/vacuum relief valve (Groth Model 1200A-02, http://grothcorp.com/en/component/products/cats/TankBlanketing/PressureVacuumReliefValves/1200A.html )
I have been requested to calulate the square inches of the internal surface geometry of the valve body to estimate how much material will be required to coat it .8 to 1mm of PFA.
Is there an way to do that?
Thanks in advance.
SolidworksGeneral