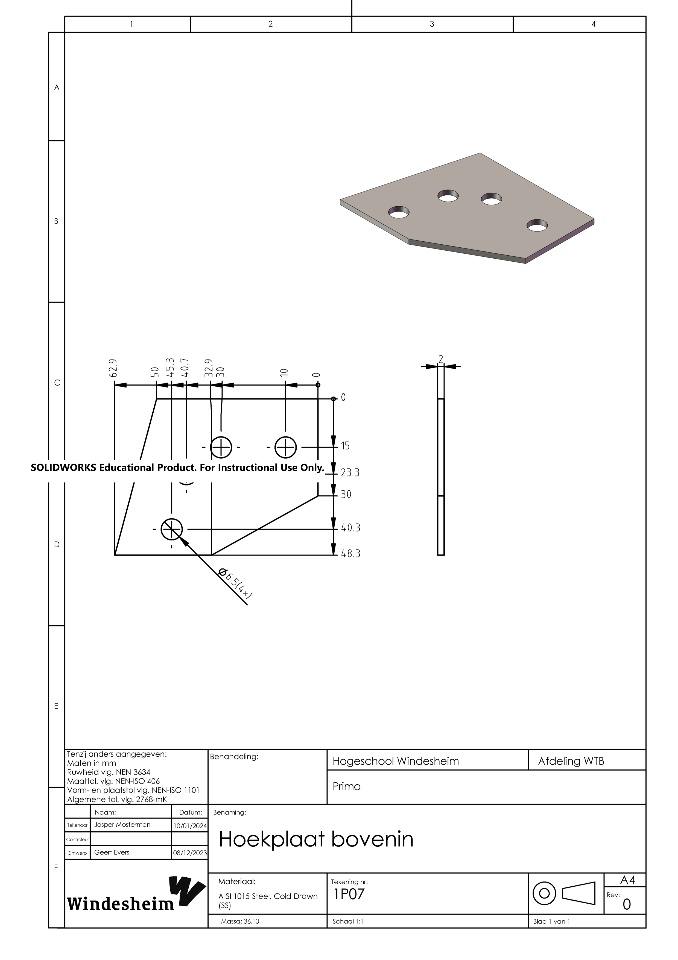
The educational purposes watermark puts itself in the middle of my drawings out of nowhere. it used to be at the bottom.
I do use templates my school gave me. I print them with print to Adobe PDF.
Can i get it to the bottom again?
Edu
The educational purposes watermark puts itself in the middle of my drawings out of nowhere. it used to be at the bottom.
I do use templates my school gave me. I print them with print to Adobe PDF.
Can i get it to the bottom again?
Edu