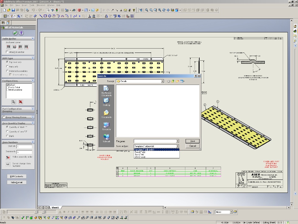
Hello, I'd like to save an excel-based BOM as an excel file,but Icannot find a way. I was set to go using theSolidworks-basedone, but it lacks the features that I need.
Can anyone offer some insight?SolidworksBill Of Materials








Can anyone offer some insight?SolidworksBill Of Materials
