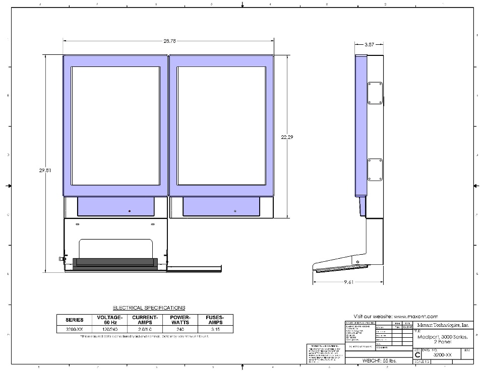
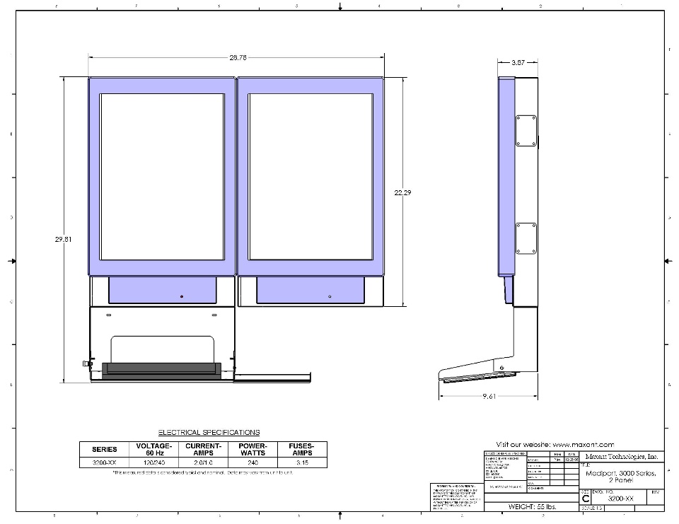
See attached jpeg sample. In the current right side view the9.61 dim shows a keyboard tray in the down position. I would liketo add a 2nd right side view to this drawing with the keyboard trayfolded into the upright position. This drawing is created with themaster assembly drawing for this product. Can this be done in SW?
Thanks,
Paul Michels
SW 2007SolidworksDrawings And Detailing
Thanks,
Paul Michels
SW 2007SolidworksDrawings And Detailing
