Hello!
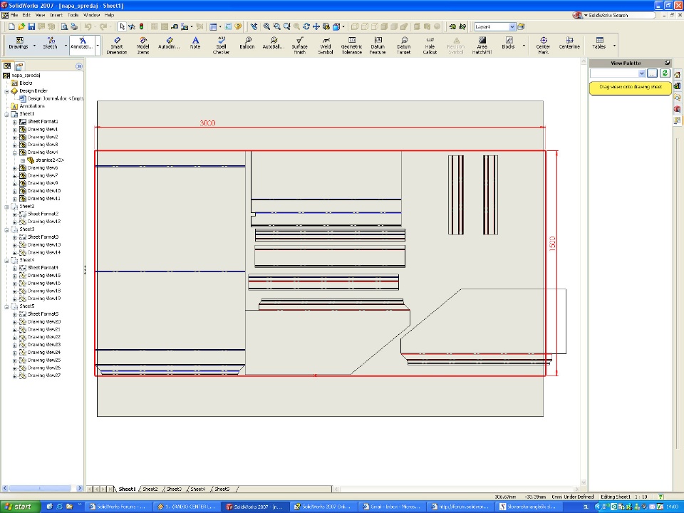
What I want to do is: put 2 or 3 flatten sheet metalpartsinto drawing and put them together on a "piece of metal"andmade a plan for optimized cutting.
Is there any other function to do that??
Thanks!
gaseSolidworksDrawings And Detailing












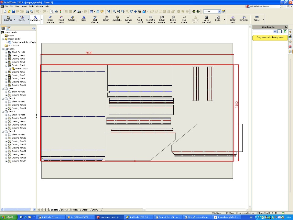
What I want to do is: put 2 or 3 flatten sheet metalpartsinto drawing and put them together on a "piece of metal"andmade a plan for optimized cutting.
Is there any other function to do that??
Thanks!
gaseSolidworksDrawings And Detailing
