Hello Community,
Can anyone help me out with calculating Plaster of Paris (POP) discharge Flow Rate of the given dimensions of Hopper.
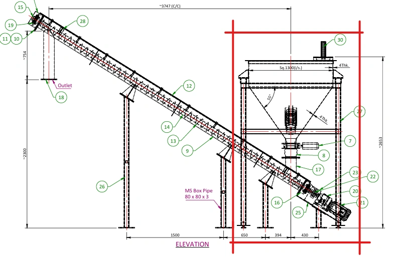
Material:Plaster of Paris
Hopper Dimensions:1300mm
Outlet Dia=178mm
Angle of Repose=55 Degree
MOC:SS-304
Hopper Capacity:1.5Tonnes
Problem Statement:Struggling to get expected Flow rate of 60kg/min
If any further details you need kindly contact on darshan.kamdar@dynovoglobal.com
Thanks in advance.
