Hello, my name is Abhishek Jadhav, and I work in the Powertrain system for Team Kratos Racing Electric. I would be making a 3-part series cover how to design a Complete Electrical Wire-Harness for a Formula Student Race Car.
In this would be part 1/3, here we would be focusing on the Logical Diagram (i.e. 2D Diagram)
Harness Design procedure:
The complete harness is designed on 3D Experience using CATIA Electrical System Design, CATIA Electrical 3D Design, CATIA Electrical 3DPart Design, and CATIA Generative Electrical 3DDesign.
The complete design procedure is divided into 3 parts:
- Logical Diagram: Creating a wiring diagram i.e., a 2D Diagram of the complete harness.
- Physical Diagram: Converting the 2D diagram into a 3D diagram i.e., routing the complete harness on the vehicle in 3D.
- Manufacturing sheet: Creating a manufacturing sheet according to the harness subparts.
A. Logical Diagram:
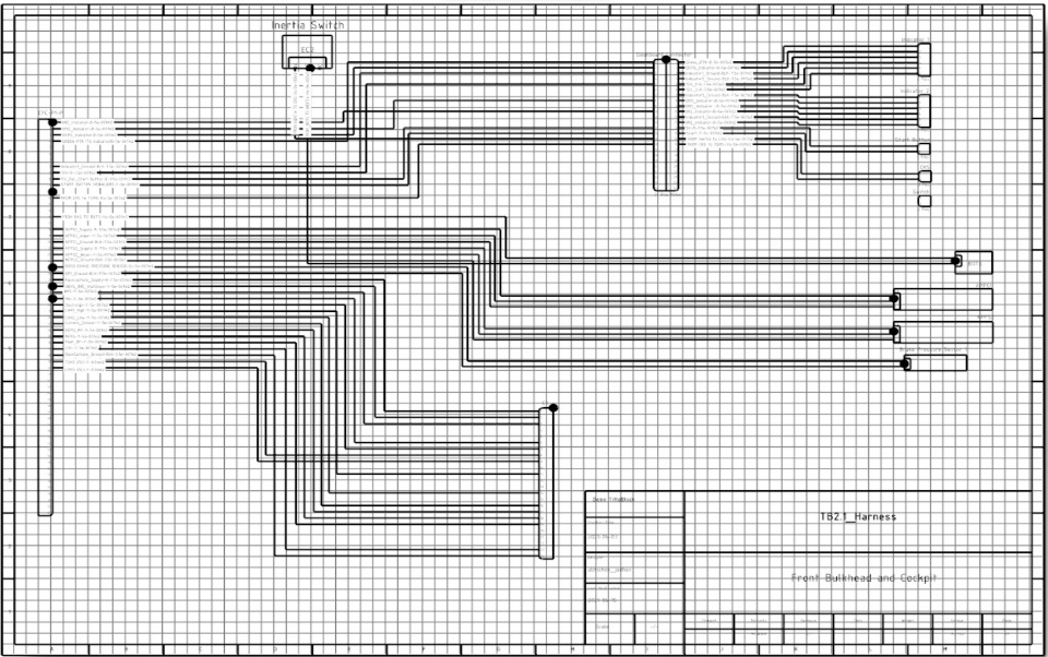
This is the process where all wire-to-wire, and wire-to-connector connections are defined, and the number of sub-parts is defined here. All the color conversion and the naming conventions are followed from this step itself. After creating the 2D schematic the draft of the complete schematic is also used for troubleshooting, as it has all the information regarding the start and destination of each wire along with the color and diameter.
Complete 3D Harness on CATIA Electrical System Design
Edu
